Verkocht onder voorbehoud:Clematisstraat 56, 7591 XG Denekamp - Foto
Verkocht onder voorbehoud
+27

Clematisstraat 56 7591 XG Denekamp € 299.000,- k.k.

  • Woonhuis
  • 4 kamers
  • 3 slaapkamers
  • 1 badkamer
  • Bouwjaar 1974
  • 234 m² perceeloppervlakte
  • 86 m² gebruiksoppervlakte
  • D Energielabel D
Verrassend ruime én praktische hoekwoning in Denekamp!

Beschrijving

Succes verkoopt zich hier keer op keer... Dit is alweer de zesde kans in deze populaire straat! De woning beschikt over een lichte woonkamer met separate keuken en maar liefst vier slaapkamers. De woning is echter sterk gedateerd en dient grondig te worden opgeknapt, een uitgelezen kans om alles volledig naar eigen smaak te maken! De ruime kavel biedt daarnaast mogelijkheden voor tuinliefhebbers of uitbreiding van de woning. Gelegen in een diverse buurt met zowel jonge als oudere bewoners woon je hier in een prettige en betrokken omgeving. Ofwel, een ideale kans voor handige kopers die ruimte, ligging én mogelijkheden weten te waarderen!

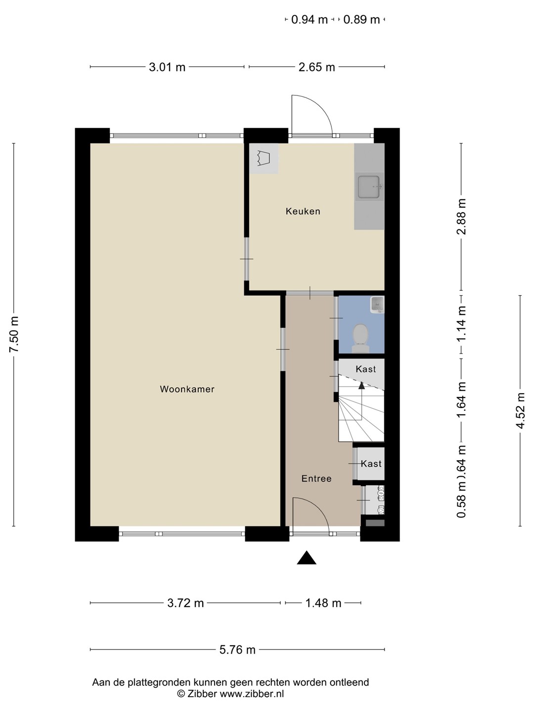
Indeling

Entree\hal; trapopgang naar de eerste verdieping; toilet; trapkastje. Vanuit de hal is er rechtstreeks toegang tot de woonkamer alsook de keuken. De ruime doorzon woonkamer biedt plek voor een zit- en eethoek en beschikt over voldoende lichtinval door de grote raampartijen aan weerszijden. De separate keuken is aan de achterzijde gelegen en geeft direct toegang tot de achtertuin.

Eerste verdieping

De overloop biedt toegang tot drie slaapkamers van net formaat, waarvan er twee zijn voorzien van een vaste kasten wand. De badkamer is uitgerust met een wasbak en een douche.

Tweede verdieping

De tweede verdieping is middels de vaste trap te bereiken en geeft toegang tot een extra ruimte welke met wat aanpassingen ideaal is als extra slaap- of werkkamer. Overigens wegens het ontbreken van een dakraam (van minimaal 0,5 m2) wordt deze gehele verdieping niet meegenomen in het woonoppervlakte. Met een eenvoudige aanpassing voeg je dus formeel ca 12 m2 aan het woonoppervlakte toe! Tevens bevind zich hier een berging waar de AWB CV opstelling (2010, eigendom) is gesitueerd.

Tuin

De tuin is netjes aangelegd met een combinatie van groen en bestrating. De vrijstaande stenen berging is perfect voor het stallen van fietsen en diversen. Via de tuin is er een achterom naar de voorkant van de woning alsook een toegang tot zowel een openbare parkeerplaats als een speeltuintje, ideaal voor kinderen.

Bijzonderheden

- Bouwjaar: 1974
- Perceeloppervlakte: 234 m2 
- Woonoppervlakte: 86 m2
- Ruime doorzon woonkamer
- Mogelijkheden voor een leefkeuken
- Drie slaapkamers en optie voor een vierde!
- Fijne tuin met stenen berging
- AWB CV ketel (2010, eigendom)
- Energielabel D!
- Anti-speculatiebeding (min. 2 jaar)
- Zelfbewoningsplicht
- Aanvaarding in overleg 
- Bij koop is een waarborgsom/bankgarantie vereist van 10% van de koopsom

Kaart

Kenmerken

Overdracht

Referentienummer
05992
Vraagprijs
€ 299.000,- k.k.
Status
Verkocht onder voorbehoud
Aanvaarding
In overleg
Aangeboden sinds
Maandag 9 maart 2026
Laatste wijziging
Donderdag 2 april 2026

Bouw

Type object
Woonhuis, eengezinswoning, hoekwoning
Soort bouw
Bestaande bouw
Bouwperiode
1974
Dakbedekking
Dakpannen
Type dak
Zadeldak
Isolatievormen
Gedeeltelijk dubbel glas
Spouwmuren

Oppervlaktes en inhoud

Perceeloppervlakte
234 m²
Woonoppervlakte
86 m²
Inhoud
374 m³
Oppervlakte overige inpandige ruimten
19 m²
Oppervlakte externe bergruimte
8 m²

Indeling

Aantal bouwlagen
3
Aantal kamers
4 (waarvan 3 slaapkamers)
Aantal badkamers
1 (en 1 apart toilet)

Locatie

Ligging
Aan rustige weg
Dichtbij openbaar vervoer
In woonwijk
Nabij school

Tuin

Type
Achtertuin
Hoofdtuin
Ja
Oriëntering
Oosten
Heeft een achterom
Ja
Staat
Normaal

Energieverbruik

Energielabel
D

CV ketel

CV ketel
AWB
Warmtebron
Gas
Bouwjaar
2010
Combiketel
Ja
Eigendom
Eigendom

Uitrusting

Warm water
CV-ketel
Verwarmingssysteem
Centrale verwarming
Badkamervoorzieningen
Douche
Wasmachineaansluiting
Wastafel
Tuin aanwezig
Ja
Heeft schuur/berging
Ja
Heeft een dakraam
Ja

Kadastrale gegevens

Kadastrale aanduiding
Dinkelland O 4751
Perceeloppervlakte
234 m²
Omvang
Geheel perceel
Eigendomsituatie
Eigen grond

Brochure(s) en overige bijlagen

Clematisstraat 56, 7591 XG DENEKAMP (1) Download