Nieuw in verkoop:Telgenhöfke 17, 7591 LV Denekamp - Foto
Nieuw in verkoop
+35

Telgenhöfke 17 7591 LV Denekamp € 397.000,- k.k.

  • Woonhuis
  • 5 kamers
  • 4 slaapkamers
  • 1 badkamer
  • Bouwjaar 1982
  • 565 m² perceeloppervlakte
  • 98 m² gebruiksoppervlakte
  • D Energielabel D
2/1 kapper met zéér diepe tuin en gave verbouwingsmogelijkheden!

Beschrijving

In een rustig straatje aan de rand van Denekamp ligt deze twee-onder-een-kapwoning op een royaal perceel van maar liefst 565 m²! De woning beschikt over een uitgebouwde leefkeuken uit de jaren ’90, die volop mogelijkheden biedt om naar eigen smaak te moderniseren. Op de eerste verdieping bevinden zich drie slaapkamers en een badkamer. Een praktische bijkeuken en een garage met opbergzolder zorgen voor extra functionaliteit. De ligging biedt veel rust, privacy en op steenworp afstand van het prachtige buitengebied. Deze woning is een mooie kans voor wie graag de handen uit de mouwen steekt en er zijn eigen droomhuis van wil maken. Kortom: een plek met potentie op een fijne locatie!

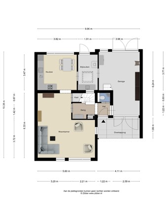
Indeling

Entree/hal; toegang tot de garage aan de rechterzijde; vrijdragende toilet met fonteintje. Daarnaast geeft de hal toegang tot de eerste verdieping, de meterkast en de woonkamer. De woonkamer is aan de voorzijde gelegen en biedt voldoende ruimte om naar eigen smaak in te richten met een grote bank en eventueel een extra eetkamer. De halfopen keuken aan de achterzijde is praktisch ingedeeld met diverse inbouwapparatuur en biedt uitzicht over de royale achtertuin. De bijkeuken ligt centraal tussen de keuken en de garage en bezit over een extra keukenblokje en over de witgoedaansluitingen. De grote garage biedt, mede door het formaat, volop mogelijkheden voor een ieder die graag klust of hobby uitvoert. Op de zolder van de garage is tevens de Nefit Bosch CV-installatie (2021, eigendom) gesitueerd.

Eerste verdieping

De overloop biedt toegang tot drie slaapkamers en een badkamer. De badkamer beschikt over een toilet, douche en wastafel.

Tuin

Deze royale achtertuin biedt volop ruimte om te genieten van rust en het buitenleven. De tuin is gelegen op het noordwesten, maar mede door het royale oppervlakte is er altijd wel een plekje waar je kunt genieten van het zonnetje! Direct achter de woning bevindt zich een verhard terras, ideaal voor een gezellige zit- of eethoek. Achterin de tuin staat een praktische houten berging en dankzij de gunstige ligging en omheining ervaar je hier veel privacy. Bovendien is de tuin via een achterom eenvoudig bereikbaar.

Bijzonderheden

- Bouwjaar: 1982
- Perceeloppervlakte: 565m2
- Woonoppervlakte: 98 m2
- Fijne woonkamer aan de voorzijde
- Halfopen keuken met inbouwapparatuur
- Praktische bijkeuken
- Drie slaapkamers op de verdieping
- Royale garage mét zolder én oprit
- Grote achtertuin met houten berging
- Nefit Bosch CV Ketel (2021, eigendom)
- Energielabel D
- Aanvaarding in overleg
- Bij koop is een waarborgsom/bankgarantie vereist van 10% van de koopsom

Kaart

Kenmerken

Overdracht

Referentienummer
05998
Vraagprijs
€ 397.000,- k.k.
Status
Nieuw in verkoop
Aanvaarding
In overleg
Aangeboden sinds
Dinsdag 7 april 2026

Bouw

Type object
Woonhuis, eengezinswoning, twee onder een kap woning
Soort bouw
Bestaande bouw
Bouwperiode
1982
Dakbedekking
Dakpannen
Type dak
Zadeldak
Isolatievormen
Dakisolatie
Gedeeltelijk dubbel glas
HR-glas
Muurisolatie
Spouwmuren

Oppervlaktes en inhoud

Perceeloppervlakte
565 m²
Woonoppervlakte
98 m²
Inhoud
456 m³
Oppervlakte overige inpandige ruimten
30 m²
Oppervlakte externe bergruimte
12 m²
Oppervlakte gebouwgebonden buitenruimte
8 m²

Indeling

Aantal bouwlagen
2
Aantal kamers
5 (waarvan 4 slaapkamers)
Aantal badkamers
1

Locatie

Ligging
Aan rustige weg
In woonwijk

Tuin

Type
Achtertuin
Hoofdtuin
Ja
Oriëntering
Noord west
Heeft een achterom
Ja
Staat
Normaal

Energieverbruik

Energielabel
D

CV ketel

CV ketel
Nefit Bosch
Warmtebron
Gas
Bouwjaar
2021
Combiketel
Ja
Eigendom
Eigendom

Uitrusting

Aantal parkeerplaatsen
4
Aantal overdekte parkeerplaatsen
1
Warm water
CV-ketel
Verwarmingssysteem
Centrale verwarming
Badkamervoorzieningen
Douche
Toilet
Wastafel
Parkeergelegenheid
Inpandige garage
Tuin aanwezig
Ja
Heeft een garage
Ja
Heeft schuur/berging
Ja
Heeft een dakraam
Ja
Heeft zonwering
Ja

Kadastrale gegevens

Kadastrale aanduiding
Dinkelland O 2887
Perceeloppervlakte
237 m²
Omvang
Geheel perceel
Eigendomsituatie
Eigen grond
Kadastrale aanduiding
Dinkelland O 3199
Perceeloppervlakte
328 m²
Omvang
Geheel perceel
Eigendomsituatie
Eigen grond

Brochure(s) en overige bijlagen

Telgenhöfke 17, 7591 LV DENEKAMP (1) Download