Koop:Broekheurnerweg 26, 7513 ES Enschede - Foto
Koop:Broekheurnerweg 26, 7513 ES Enschede - Foto
Koop:Broekheurnerweg 26, 7513 ES Enschede - Foto
Koop:Broekheurnerweg 26, 7513 ES Enschede - Foto
+4

Broekheurnerweg 26 7513 ES Enschede € 565.000,- v.o.n.

  • Woonhuis
  • 4 kamers
  • 3 slaapkamers
  • 1 badkamers
  • Bouwjaar 2025
  • 165 m² perceeloppervlakte
  • 127 m² gebruiksoppervlakte
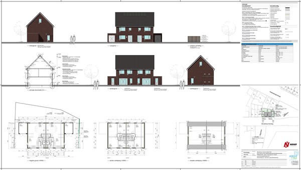
Dubbelblok Broekheurnerweg Enschede

Beschrijving

Op een mooie locatie aan de Broekheurnerweg in Enschede, op loopafstand van het bruisende stadscentrum, wordt momenteel een stijlvol dubbelblok gerealiseerd. De bouw is reeds gestart, wat betekent dat u binnenkort al kunt genieten van uw gloednieuwe woning. Deze energiezuinige woningen zijn volledig geïsoleerd en bieden daarmee optimaal wooncomfort. Met een moderne uitstraling, ruime achtertuin en parkeergelegenheid op eigen terrein is dit de ideale plek voor gezinnen of starters. Wonen met alle stedelijke voorzieningen binnen handbereik? Grijp nu uw kans!

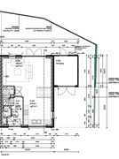
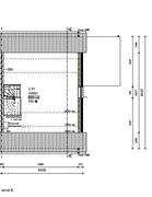
Indeling:
- Begane grond: entree, toilet, open keuken en een woonkamer aan de achterzijde met openslaande deuren naar de tuin.
- 1e verdieping: overloop, 3 slaapkamers, badkamer voorzien van inloopdouche, wastafel en hangend toilet.
- 2de verdieping: open ruimte

De woning beschikt over een eigen parkeerplaats.

- Planning: De bouw is inmiddels gestart. Waarbij de planning is om nog in 2025 op te leveren.
- Oplevering: Exclusief keuken, tuinaanleg en bestrating.

Kaart

Kenmerken

Overdracht

Referentienummer
05921
Koopsom
€ 565.000,- v.o.n.
Aanvaarding
In overleg
Aangeboden sinds
Vrijdag 25 april 2025

Bouw

Type object
Woonhuis, eengezinswoning, twee onder een kap woning
Soort bouw
Nieuwbouw
Bouwperiode
2025
Dakbedekking
Dakpannen
Type dak
Zadeldak
Isolatievormen
Dakisolatie
Dubbel glas
HR-glas
Muurisolatie
Spouwmuren
Vloerisolatie
Volledig geïsoleerd

Oppervlaktes en inhoud

Perceeloppervlakte
165 m²
Woonoppervlakte
127 m²
Inhoud
509 m³
Oppervlakte overige inpandige ruimten
10 m²

Indeling

Aantal bouwlagen
3
Aantal kamers
4 (waarvan 3 slaapkamers)
Aantal badkamers
1 (en 1 apart toilet)

CV ketel

Combiketel
Ja

Uitrusting

Aantal parkeerplaatsen
1
Verwarmingssysteem
Warmtepomp
Heeft schuur/berging
Ja

Media

Plattegronden