Nieuw in verkoop:Nordhornsestraat 79, 7591 BD Denekamp - Foto
Nieuw in verkoop
+29

Nordhornsestraat 79 7591 BD Denekamp € 198.000,- k.k.

  • Woonhuis
  • 4 kamers
  • 3 slaapkamers
  • 1 badkamers
  • Bouwjaar 1920
  • 170 m² perceeloppervlakte
  • 97 m² gebruiksoppervlakte
  • E Energielabel E
Tussenwoning aan de rand van Denekamp mét slaap- en badkamer op de begane grond!

Beschrijving

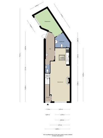
Betaalbaar wonen aan de rand van Denekamp? Dan is deze tussenwoning met slaap- én badkamer op de begane grond iets voor jou! Op de begane grond beschikt de woning over een woonkamer, open keuken, bijkeuken en in de uitbouw aan de achterzijde voorziet de woning over een slaap- en badkamer! Op de verdieping bevinden zich twee slaapkamers. De woning is gelegen op een perceel van 170 m2 en de tuin is gelegen op het Zuidwesten.

Indeling

Entree; meterkast; trapopgang naar de verdieping en toegang tot de woonkamer. De woonkamer welke aan de voorzijde van de woning is gelegen biedt vrij uitzicht over tegenover gelegen weiland en staat direct in verbinding met de open keuken. Vanuit de keuken is er toegang tot de trapkast met kleine opbergkelder en tot het achterportaal. Hier bevindt zich het toilet, de Remeha cv ketel (2010, eigendom) en is er toegang tot de slaap- en badkamer op de begane grond! Tevens is middels het achterportaal de achtertuin te bereiken.

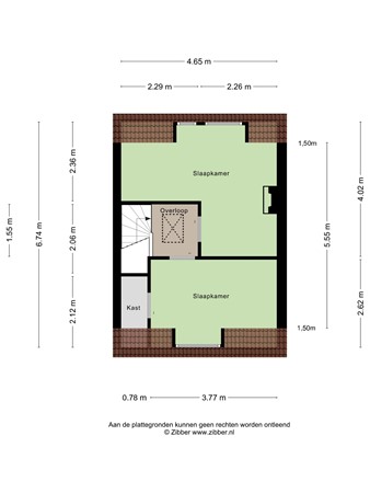
Eerste verdieping

De eerste verdieping is voorzien van een overloop welke toegang biedt tot twee slaapkamers, voorheen zijn dit echter drie slaapkamers geweest. Middels wat eenvoudige aanpassingen zijn hier wederom drie slaapkamers te creeren.

Tweede verdieping

Middels een vlizotrap is de opbergzolder te bereiken.

Tuin

De achtertuin is gesitueerd op het Zuidwesten, is voorzien van een houten berging en biedt mede door het formaat genoeg mogelijkheden. Tevens is de tuin toegankelijk middels de achterom vanuit de Duttingstraat.

Bijzonderheden

- Bouwjaar: 1920
- Woonoppervlakte: 97 m2
- Perceeloppervlakte: 170 m2
- Woonkamer met gashaard
- Slaap- en badkamer op de begane grond!
- Twee (mogelijkheid voor drie) slaapkamers op de verdieping
- Remeha CV opstelling (eigendom, 2010)
- V.v. energielabel E
- Gelegen nabij het centrum van Denekamp
- Aanvaarding in overleg
- Bij koop is een waarborgsom/bankgarantie vereist van 10% van de koopsom

Kaart

Kenmerken

Overdracht

Referentienummer
05958
Vraagprijs
€ 198.000,- k.k.
Inrichting
Niet gestoffeerd
Inrichting
Niet gemeubileerd
Status
Nieuw in verkoop
Aanvaarding
In overleg
Aangeboden sinds
Dinsdag 14 oktober 2025

Bouw

Type object
Woonhuis, eengezinswoning, tussenwoning
Soort bouw
Bestaande bouw
Bouwperiode
1920
Dakbedekking
Dakpannen
Type dak
Mansardedak
Keurmerken
Energie prestatie advies
Isolatievormen
Grotendeels dubbel glas
Spouwmuren

Oppervlaktes en inhoud

Perceeloppervlakte
170 m²
Woonoppervlakte
97 m²
Inhoud
344 m³
Oppervlakte externe bergruimte
13 m²

Indeling

Aantal bouwlagen
3
Aantal kamers
4 (waarvan 3 slaapkamers)
Aantal badkamers
1 (en 1 apart toilet)

Tuin

Type
Achtertuin
Hoofdtuin
Ja
Oriëntering
Zuid-west
Heeft een achterom
Ja
Staat
Normaal

Energieverbruik

Energielabel
E

CV ketel

CV ketel
Remeha
Warmtebron
Gas
Bouwjaar
2010
Combiketel
Ja
Eigendom
Eigendom

Uitrusting

Warm water
CV-ketel
Verwarmingssysteem
Gashaard
Badkamervoorzieningen
Douche
Toilet
Wastafel
Heeft een rookkanaal
Ja
Tuin aanwezig
Ja
Heeft schuur/berging
Ja
Heeft een dakraam
Ja

Kadastrale gegevens

Kadastrale aanduiding
Dinkelland O 3154
Perceeloppervlakte
170 m²
Eigendomsituatie
Eigen grond