Wonen in stijl én comfort? Deze jonge en energiezuinige woning in het gezellige Denekamp heeft alles wat je zoekt! Met energielabel A geniet je hier van lage lasten en optimaal wooncomfort. Het hoge afwerkingsniveau springt direct in het oog, met als absolute blikvanger de prachtige steellook deuren tussen leefkeuken en woonkamer, die zorgen voor een moderne en luxe uitstraling. De royale leefkeuken vormt het hart van het huis, dé plek om samen te koken, tafelen en genieten.
Met drie comfortabele slaapkamers, stijlvolle badkamer en een extra tweede verdieping is er volop ruimte voor het gehele gezin! De luxe afgewerkte garage biedt niet alleen praktische bergruimte, maar past perfect bij de hoogwaardige uitstraling van de woning. Buiten wacht een sfeervolle, afsluitbare veranda waar je het hele jaar door heerlijk zit. Gelegen in een gezellige buurt, op loopafstand van het buitengebied én de levendige dorpskern, woon je hier rustig maar toch centraal, de perfecte combinatie!
Indeling
Entree/hal met trapopgang naar de verdieping, toilet met fonteintje en de meterkast. De woonkamer is aan de voorzijde gelegen en beschikt over grote raampartijen, fraaie vaste kasten én een sfeervolle ingebouwde elektrische sfeerhaard. Op de gehele vloer vind je een gave en goed onderhouden vloer. De woonkamer en woonkeuken zijn door middel van stijlvolle steellook deuren afgescheiden. De leefkeuken beschikt over voldoende ruimte voor een grote eettafel en voorziet in o.a. een koelkast, vriezer, inbouw koffiezetapparaat, 5 pits gaskookplaat, afzuigkap en een vaatwasser. De luxe afgewerkte garage beschikt evenals de rest van de woning over een zeer hoog afwerkingsniveau met o.a. prachtige vaste kasten en een ingebouwde wijnkoelkast!
Eerste verdieping
Overloop met toegang tot drie ruime slaapkamers. De twee slaapkamers aan de voorzijde zijn voorzien van bergruimte achter de knieschotten. De geheel betegelde en modern uitgevoerde badkamer beschikt over een inloopdouche, wastafel, verwarmde spiegel, toilet en een designradiator.
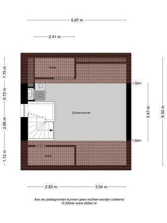
Tweede verdieping
Via een vaste trap is de zolder toegankelijk. Deze ruimte leent zich perfect voor het realiseren van een extra slaap- of hobbykamer. Daarnaast bevinden zich hier de witgoedaansluitingen.
Tuin
Middels de openslaande deuren vanuit het eetgedeelte is de fraaie serre te bereiken. De serre beschikt over gave glazen schuifdeuren en een tv aansluiting waardoor dit de ideale plek is om met vrienden of familie te genieten van het buiten zijn! Verder is de tuin onderhoudsvriendelijke wijze aangelegd met o.a. kunstgras én voldoende groen om je privacy te waarborgen!
Bijzonderheden
- Bouwjaar: 2012 - Perceeloppervlakte: 250 m2 - Woonoppervlakte: 139 m2 - Moderne leefkeuken v.v. alle gemakken - Sfeervolle woonkamer met elektrische sfeerhaard - Moderne ruime badkamer! - Luxe garage met carport en ruim oprit! - Stijlvolle serre met glazen schuifdeuren - Intergas CV ketel (2011, eigendom) - V.v. energielabel A i.c.m. 15 zonnepanelen - Aanvaarding in overleg - Bij koop is een waarborgsom/bankgarantie vereist van 10% van de koopsom
Kaart
Kenmerken
Overdracht
Referentienummer
05985
Vraagprijs
€ 519.000,- k.k.
Status
Nieuw in verkoop
Aanvaarding
In overleg
Aangeboden sinds
Dinsdag 3 maart 2026
Bouw
Type object
Woonhuis, eengezinswoning, twee onder een kap woning
Soort bouw
Bestaande bouw
Bouwperiode
2011
Dakbedekking
Dakpannen
Type dak
Zadeldak
Isolatievormen
Dakisolatie Dubbel glas HR-glas Muurisolatie Spouwmuren Vloerisolatie Volledig geïsoleerd